PCCar.ru - Ваш автомобильный компьютер

PCCar.ru - Ваш автомобильный компьютер (https://pccar.ru/index.php)
-   Вопросы и ответы (https://pccar.ru/forumdisplay.php?f=26)
-   -   К чему подключить питание монитора? (https://pccar.ru/showthread.php?t=15014)

odessit 18.05.2011 22:21

!!!
 
Про единое питание это где то написано ???
Почему вы считаете свое мнение априори???

Я лично считаю подругому .. и при этом езжу именно с таким подключением уже не один год !!!

Повторяю если вы мне Обьясните по человечески !!!
ПОЧЕМУ так хуже !!!
Не вариантами типа так надо и единная система!!!

Я могу с таким же успехом утверждать что у меня камера парковочная сзади единая система с монитором так мне чего теперь монитор подрубать от задних стопов ?

Вот такой я упертый ...
Все что не хуже по тех характеристикам я буду использовать и мне все равно что как то так красивее не понятно почему !!!!

Есть провод с подходящим сечением
отвечающий всем тех и физ нормам ... в чем проблемма его использовать ?
религия непозволяет ?

Hamster 19.05.2011 02:02

Цитата:

Сообщение от odessit (Сообщение 184503)
Про единое питание это где то написано ???
Почему вы считаете свое мнение априори???

Гм... А про сертифицированные стандарты на подключение компов в машину написано где-нибудь?
Я не считаю свое мнение априори - просто высказываю свою точку зрения.
Это ведь форум.

odessit 19.05.2011 11:11

Ну тоды не вопрос...
Но согласитесь что по качеству
Подключения наводкам итд...
Разницы небудет никакой...
Дело только так сказать в религии!!!

~aviator~ 19.05.2011 14:26

Вложений: 1
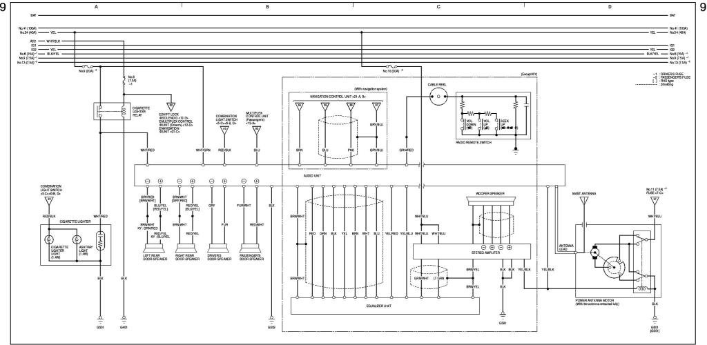
Вот вам товарищи изучайте, мафон и прикупиватель вообще висит на одном плюсе, через одно реле, так что питание лишних 100 мА, я думаю никогого вреда не принесет, это равносильно что + я возьму с мафона
Вложение 22117
что теперь скажите?

odessit 19.05.2011 15:07

Не по феншую!!! У тя + не на восток смотрить ;)

~aviator~ 19.05.2011 15:26

Пилять, это с офиц. Мануала Honda, а вы в свои заглядывали, откуда у Вас эта цепи идет??

stealth_202 19.05.2011 16:30

1. Текст в приложенном скане мануала нечитаемый даже при увеличении.
2. Кроме хонды, существуют десятки других автомобилей.
3. Мануал к моей машине, выданный мне дилером при покупке, не содержит электрической схемы автомобиля.
4. Даже у профи нет возможности изучить мануалы всех машин, как там и от чего что запитано. Что прокатит в одной машине - не прокатит в другой. Поэтому используется простое, надежное, универсальное решение - отдельный кабель питания от аккумулятора через отдельный предохранитель. Ты не вмешиваешься в электрику машины, она отвечает тебе тем же. Вот такая "религия", если вам нравится это слово.

~aviator~ 19.05.2011 17:26

Вложений: 1
Короче мне надоело тут писать, я вам привел реальную схему, от конкретной машины.
1. Вот Вам оригинал Вложение 22123
2. Согласен.
3. Это Ваши проблемы, в интернете сейчас свего полно, тем более если Вы с такой кропотливостью к этому подходите можно и изучить, Вы же профи.
4. Какой же он тогда профи раз у него нет времени, как говорорится: "Лучше меньше, но лучше".
Привожу конкретные факты, а люди все равно стоят на своем, мол так надо и все остально ерунда, своя точка зрения это хорошо конечно, но Вы мне тоже покажите хоть какое пояснение, формулы приводить не обязательно. А мне вот профи сказал...., это не аргумент.

odessit 19.05.2011 20:33

Ребят а как думаете что лучше?
Винда или линукс?

Hamster 19.05.2011 22:22

Цитата:

Сообщение от odessit (Сообщение 184615)
Ребят а как думаете что лучше?
Винда или линукс?

+100
А как лучше - тянуть и "+" и "-" с аккума или "-" брать с корпуса? :)

Вопросы, ответы на которые могут быть диаметрально противоположные и оба правильные :)
В общем, все стороны высказались - какую примет автор топика - его дело :)

Хотя, каждая из сторон останется при своем мнении :)


Часовой пояс GMT +4, время: 07:44.

Работает на vBulletin® версия 3.8.4.
Copyright ©2000 - 2025, Jelsoft Enterprises Ltd.
Перевод: zCarot